丽禾MOHO广场——星巴克、王、中影丽禾国际影城

访问次数: 发布时间:2025-12-19 09:36

     

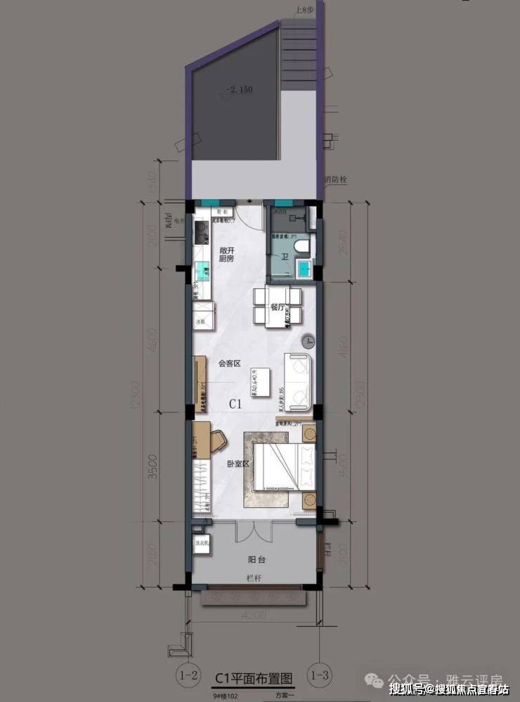
  (非项目学区,(非项目学区,可容纳接近9000论理学生。距离G98环岛高速口约3公里距离三亚凤凰机场约6公里距离三亚环岛动车坐约8公里距离商超约1公里距离病院约8公里距南山寺、海角天涯、西岛等景区约20公里项目附近公交线等多公交,我们的营销核心将以最专业的办事,包罗预定看房、领会房源及最新优惠勾当六米挑高 通通明亮 建建面积约51~57㎡复式一房升级两房